Le projet “Hospiteau” comprend 2 maisons modernes de 2 ou 3 chambres dans le centre d’Anderlues. Cette situation centrale permet d’être à côté de tous les services, commerces et moyens de transport en communs. La rue en cul-de-sac offre, de plus, un espace de tranquillité au sein de la ville.

Cliquer sur les liens ci-dessous pour ouvrir les plans

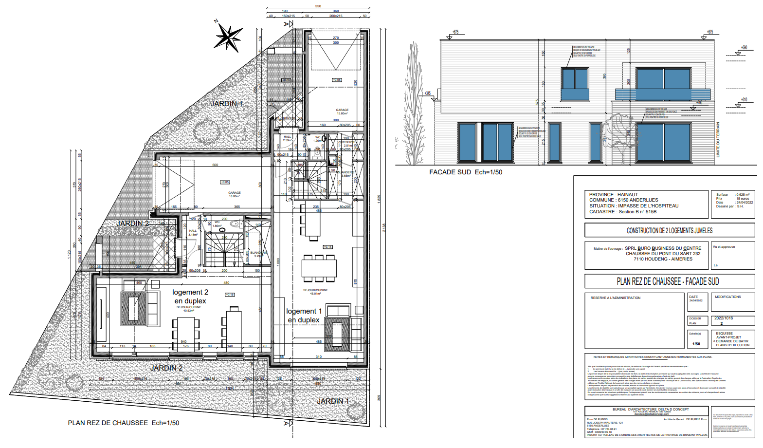
Plans maison n°1
Plans maison n°2

Prix de vente

Les taxes comprennent la tva à 6% sur la construction et les droits d’enregistrement à 3% (pour autant que vous soyez primo-acquérants).
Si vous possédez déjà un bien ou si vous achetez en société, les droits sont de 12,5%.
La tva est à 6% car le projet est une démolition-reconstruction.

Proximité des moyens de communication

Proximité des supermarchés

Proximité des écoles