0
Passer au contenu
Hospiteau
Marais
Contact
Ma Future Maison
Ouvrir le menu
Fermer le menu
Hospiteau
Marais
Contact
Ma Future Maison
Ouvrir le menu
Fermer le menu
Hospiteau
Marais
Contact
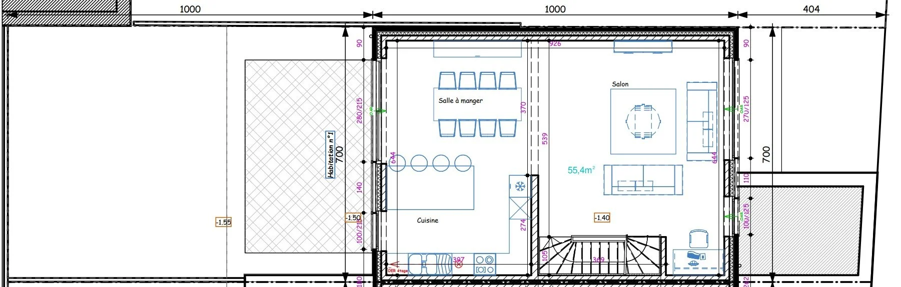
Logement 1 - Rez
Logement 1 - Niveau +1
Logement 1 - Niveau +2